Expansive 4,600 sq ft Property Offering Exceptional Potential Near Town
"¢ Listed at approximately $76/sf
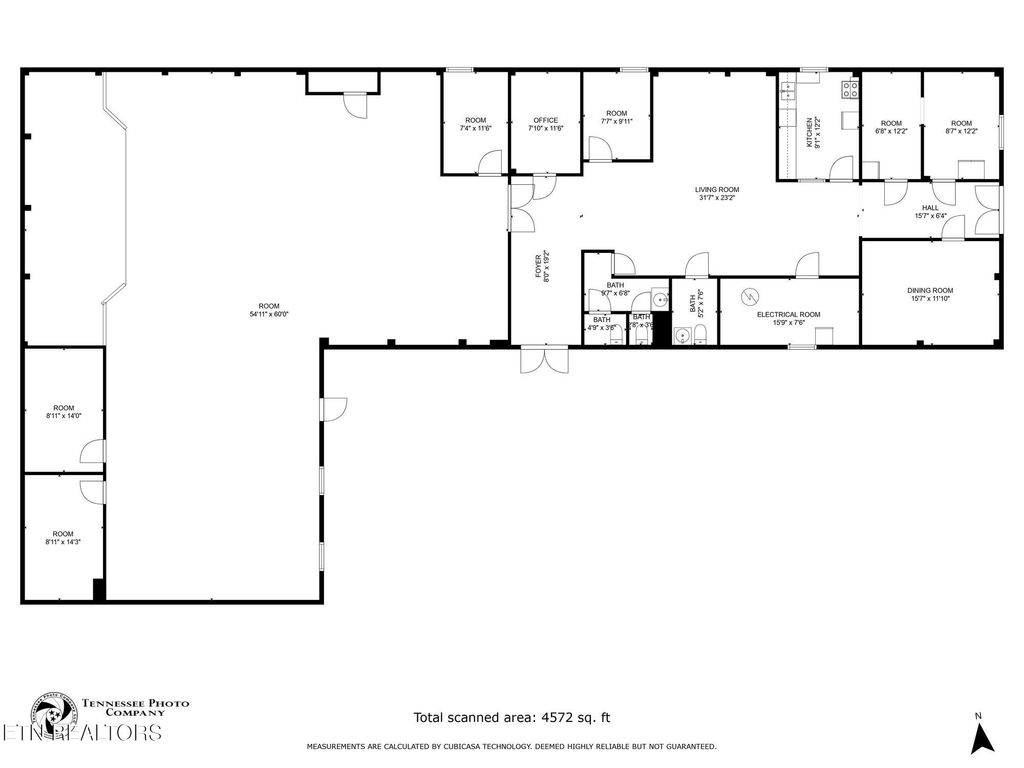
"¢ 4,600sf building on 1 acre just one minute from town
"¢ Opportunity for conversion into residential living quarters
"¢ Flexible interior layout that can be redesigned for bedrooms, living areas, hobby rooms, or multi-purpose spaces
"¢ 30×30 addition (2017) featuring a large open room and 2 additional rooms
"¢ Total of 6 rooms/offices offering multiple layout options
"¢ Existing kitchen area that could be adapted for residential use
"¢ Ample storage throughout
"¢ His & her restrooms that can be reconfigured into standard residential bathrooms
"¢ Two HVAC systems serving the building
"¢ Currently on a septic system; city sewer is available
- Residential tap fee: $850
- Commercial tap fee: $1,250
"¢ Approx. 250 ft of road frontage on Sparta Highway
"¢ Access via the cul-de-sac on Oak Rd
"¢ 25+ parking spaces that could be repurposed for yard space, garages, or outdoor living areas
"¢ Property taxes TBD (currently under religious exemption)
"¢ Expansive layout offering excellent potential for a custom residential conversion
Call today for more information! *Buyer to verify all information & measurements before making an informed offer*
|
LAST UPDATED
|
12/2/2025
|
TRACT
|
Port Haven
|
|
YEAR BUILT
|
1993
|
COMMUNITY
|
Cumberland County - 34
|
|
COUNTY
|
Cumberland County - 34
|
STATUS
|
Active
|
|
PROPERTY TYPE(S)
|
Single Family
|
|
|
| Elementary School |
Glenn Martin |
| Jr. High School |
Martin |
| High School |
Cumberland County |
| AIR |
Ceiling Fan(s), Central Air |
| AIR CONDITIONING |
Yes |
| APPLIANCES |
Dishwasher |
| AREA |
Cumberland County - 34 |
| CONSTRUCTION |
Frame, Metal Siding |
| HEAT |
Central, Electric, Natural Gas |
| INTERIOR |
Eat-in Kitchen, Pantry |
| LOT |
0.89 acre(s) |
| LOT DESCRIPTION |
Cul-De-Sac, Irregular Lot, Level, Private, Rolling Slope, Wooded |
| PARKING |
Off Street, RV Access/Parking, Assigned |
| SEWER |
Septic Tank, Other |
| STYLE |
Other, Traditional |
| SUBDIVISION |
Port Haven |
| WATER |
Public |
We respect your online privacy and will never spam you. By submitting this form with your telephone number
you are consenting for Sonny
Ferguson to contact you even if your name is on a Federal or State
"Do not call List".
Listed with Isham-Jones Realty
The data relating to real estate for sale on this Web Site comes from the IDX Program of the East Tennessee Realtors® Multiple Listing Service. © Copyright 2025. All rights reserved.
This information is being provided for the consumers' personal, non-commercial use and may not be used for any purpose other than to identify prospective properties the consumers may be interested in purchasing. This information is updated weekly, however, some of these properties may subsequently have sold and may no longer be available. The Real Estate Broker providing this data believes it to be correct, but advises interested parties to confirm the data before relying on it in a purchase decision.
This IDX solution is (c) Diverse Solutions 2025.
Save favorite listings, searches, and get the latest alerts
Save your favorite listings, searches, and receive the latest listing alerts