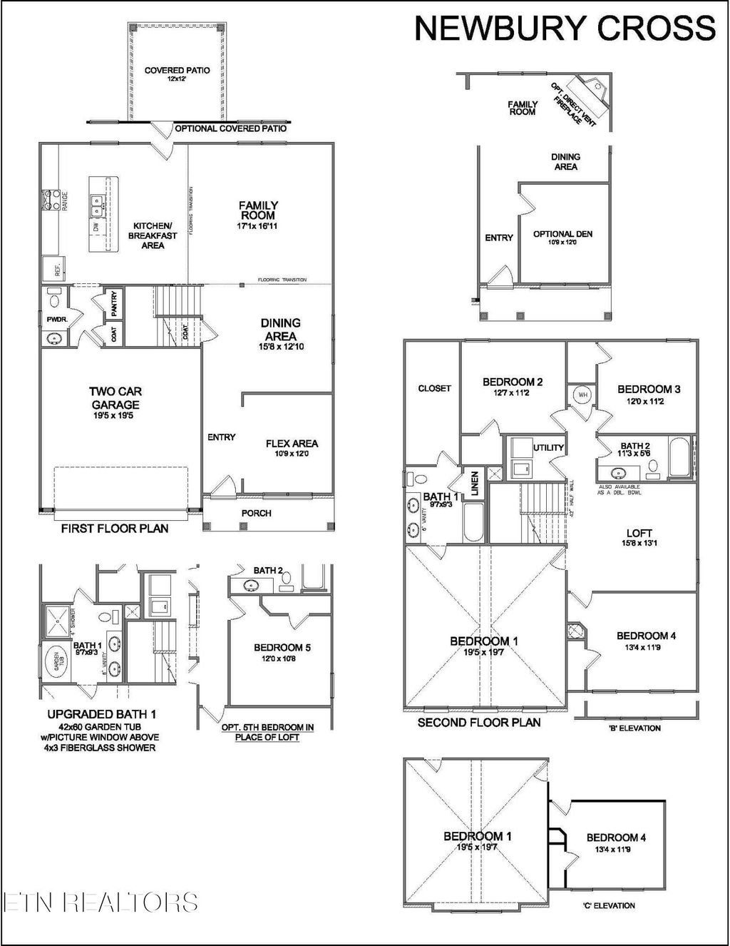
The Newbury Cross, part of the Trend Collection of floor plans, is a two-story plan that can be configured with up to five bedrooms. The plan offers a versatile flex area than can be configured as a den off the entry, plus a formal dining room defined by a column. The open kitchen and family room are located at the rear of the home. The island kitchen offers both a breakfast area and countertop dining. The entrance from the garage leads to the kitchen via a hallway adjoining the powder room, pantry, and coat closet for a semi-private and convenient entry. Upstairs are the primary bedroom suite, three bedrooms, a loft and a hall bath. The loft can also be configured as a fifth bedroom option. The primary bedroom suite includes a bedroom with vaulted ceiling, large closet, and spacious bath with tub/shower, window, and linen storage. An upgraded bath offers a garden tub, separate shower, and picture window.
|
LAST UPDATED
|
11/6/2025
|
TRACT
|
Hickory View
|
|
YEAR BUILT
|
2026
|
COMMUNITY
|
Knox County - 1
|
|
GARAGE SPACES
|
2.0
|
COUNTY
|
Knox County - 1
|
|
STATUS
|
Active
|
PROPERTY TYPE(S)
|
Single Family
|
| Elementary School |
Hardin Valley |
| Jr. High School |
Hardin Valley |
| High School |
Hardin Valley Academy |
| AIR |
Central Air |
| AIR CONDITIONING |
Yes |
| APPLIANCES |
Dishwasher, Disposal, Microwave, Range, Refrigerator |
| AREA |
Knox County - 1 |
| CONSTRUCTION |
Block, Brick, Vinyl Siding |
| FIREPLACE |
Yes |
| GARAGE |
Yes |
| HEAT |
Central, Electric, Fireplace Insert, Natural Gas, Zoned |
| HOA DUES |
550|Annually |
| INTERIOR |
Eat-in Kitchen, Kitchen Island, Pantry |
| LOT |
6098 sq ft |
| LOT DESCRIPTION |
Level |
| LOT DIMENSIONS |
46x134x46x134 |
| PARKING |
Garage Door Opener, Attached |
| SEWER |
Public Sewer |
| STORIES |
2 |
| STYLE |
Traditional |
| SUBDIVISION |
Hickory View |
| WATER |
Public |
We respect your online privacy and will never spam you. By submitting this form with your telephone number
you are consenting for Sonny
Ferguson to contact you even if your name is on a Federal or State
"Do not call List".
Listed with Realty Executives Associates
The data relating to real estate for sale on this Web Site comes from the IDX Program of the East Tennessee Realtors® Multiple Listing Service. © Copyright 2025. All rights reserved.
This information is being provided for the consumers' personal, non-commercial use and may not be used for any purpose other than to identify prospective properties the consumers may be interested in purchasing. This information is updated weekly, however, some of these properties may subsequently have sold and may no longer be available. The Real Estate Broker providing this data believes it to be correct, but advises interested parties to confirm the data before relying on it in a purchase decision.
This IDX solution is (c) Diverse Solutions 2025.
Save favorite listings, searches, and get the latest alerts
Save your favorite listings, searches, and receive the latest listing alerts