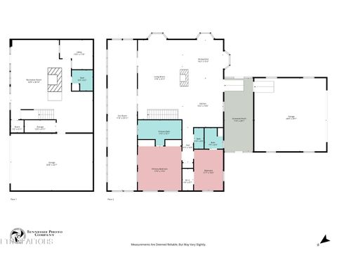
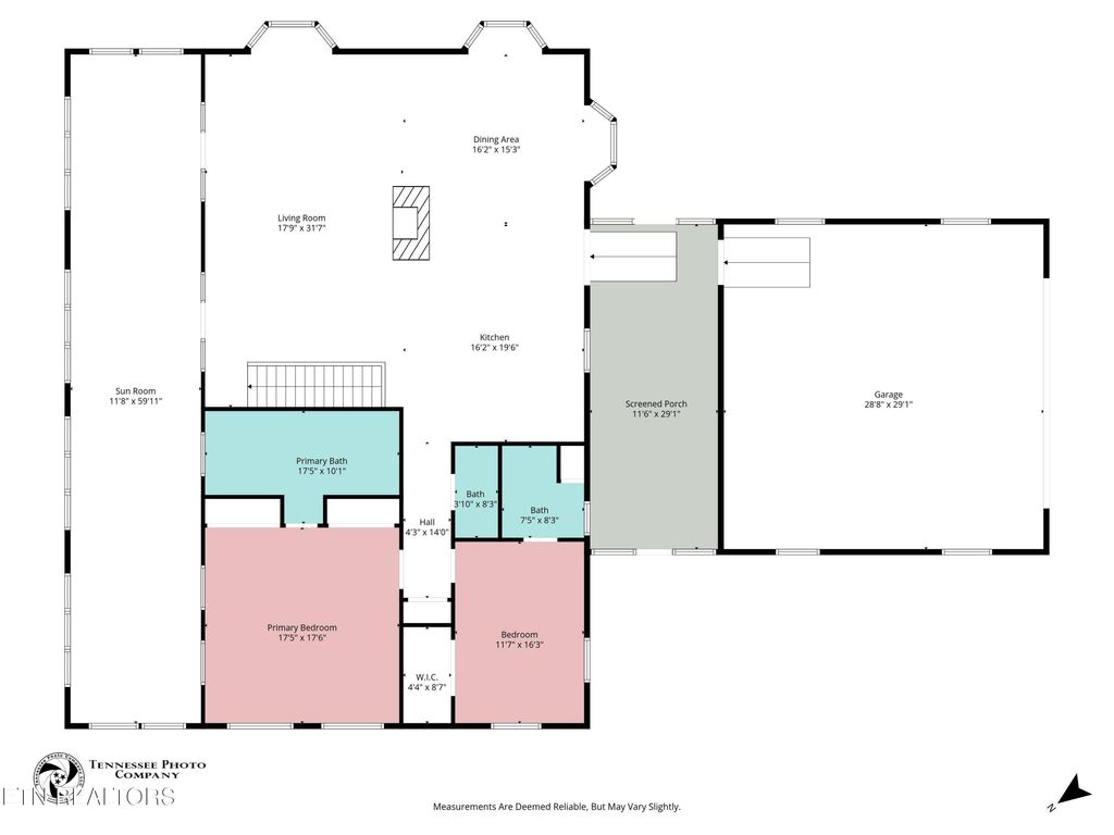
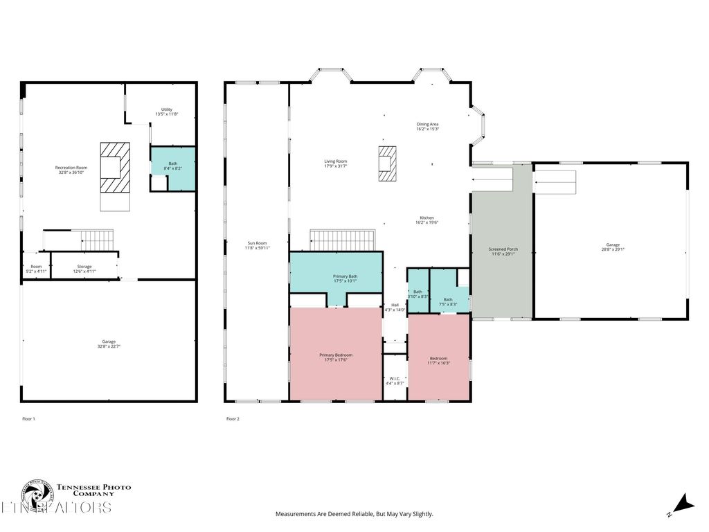
Over 20 unrestricted acres w/ a spacious custom stone home, a 2 acre pond, shop w/ water-electric + a half bath, & another storage shed next to it. Pulling in you have a park like setting property, paved circle driveway w/ ample parking as well as main level living access w/ 2 of the 4 garage storage on the main level. Walking in through your screened breezeway provides access to the open kitchen, living, & dining area + a stone fireplace. The main level also provides 2 bedrooms each w/ their own en-suites & a 1/2 bath. Off of the living area is an enclosed sunroom area overlooking your pond across the whole front of the house. The finished basement also has a stone fireplace, 2nd living area, laundry space, & access to your other 2 car garage + workshop. There is also another matching stone building that used to hold a generator. Down from the home is your 28x36 shop w/ large garage doors & a concrete pad. Next to that is a 16x38 shed & plenty of pasture & wooded land. This property comes in 3 parcels & is being sold ''as is''. No known issues & home needs some updates to make it your own! Updated deed in docs & accepting cash/conventional loans.
|
LAST UPDATED
|
10/20/2025
|
YEAR BUILT
|
1989
|
|
COMMUNITY
|
Cumberland County - 34
|
GARAGE SPACES
|
4.0
|
|
COUNTY
|
Cumberland County - 34
|
STATUS
|
Active
|
|
PROPERTY TYPE(S)
|
Single Family
|
|
|
| Elementary School |
Crab Orchard |
| Jr. High School |
Crab Orchard |
| High School |
Stone Memorial |
| AIR |
Ceiling Fan(s), Central Air |
| AIR CONDITIONING |
Yes |
| APPLIANCES |
None |
| AREA |
Cumberland County - 34 |
| BARN/EQUESTRIAN |
Yes |
| BASEMENT |
Finished, Walk-Out Access, Yes |
| CONSTRUCTION |
Other, Stone, Vinyl Siding |
| FIREPLACE |
Yes |
| GARAGE |
Yes |
| HEAT |
Ceiling, Central, Electric, Natural Gas |
| INTERIOR |
Eat-in Kitchen, Walk-In Closet(s) |
| LOT |
20.68 acre(s) |
| LOT DESCRIPTION |
Other |
| LOT DIMENSIONS |
See acreage. |
| PARKING |
Attached, Basement, Other, RV Access/Parking |
| SEWER |
Septic Tank |
| STYLE |
Other |
| TAXES |
1789.62 |
| WATER |
Well |
| WATERFRONT DESCRIPTION |
Pond |
We respect your online privacy and will never spam you. By submitting this form with your telephone number
you are consenting for Sonny
Ferguson to contact you even if your name is on a Federal or State
"Do not call List".
Listed with Skender-Newton Realty
The data relating to real estate for sale on this Web Site comes from the IDX Program of the East Tennessee Realtors® Multiple Listing Service. © Copyright 2025. All rights reserved.
This information is being provided for the consumers' personal, non-commercial use and may not be used for any purpose other than to identify prospective properties the consumers may be interested in purchasing. This information is updated weekly, however, some of these properties may subsequently have sold and may no longer be available. The Real Estate Broker providing this data believes it to be correct, but advises interested parties to confirm the data before relying on it in a purchase decision.
This IDX solution is (c) Diverse Solutions 2025.
Save favorite listings, searches, and get the latest alerts
Save your favorite listings, searches, and receive the latest listing alerts