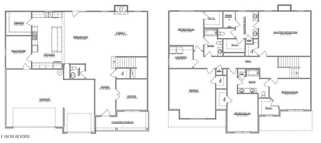
New Construction featuring The Baymont floor plan in The Estates at The Preserve! The Baymont is currently under construction, expected to be complete in February 2026. The Preserve is more than a place to call home it's a lifestyle for families who relish in a resort like community at an affordable price. Amenities include the beach entry outdoor pool with circular tube slide, a complete Wellness Center with gym, indoor pool, hot tub, sauna, and steam room. You can also enjoy tennis, pickleball, and basketball courts and a playground! Enjoy the beauty of The Preserve through the walking trails that take you to the community fishing dock area. Full-service Marina and ship store open seasonally. The day use dock and boat launch allow you to explore or fish along the 5 miles of shoreline by boat, kayak or canoe. Covered boat slips offer electricity, fuel and lifts and are available for rent.
LAST UPDATED
|
10/6/2025
|
TRACT
|
The Preserve
|
YEAR BUILT
|
2026
|
COMMUNITY
|
Roane County - 31
|
GARAGE SPACES
|
3.0
|
COUNTY
|
Roane County - 31
|
STATUS
|
Pending
|
PROPERTY TYPE(S)
|
Single Family
|
Elementary School |
Linden |
Jr. High School |
Robertsville |
High School |
Oak Ridge |
AIR |
Ceiling Fan(s), Central Air |
AIR CONDITIONING |
Yes |
APPLIANCES |
Dishwasher, Microwave, Range |
AREA |
Roane County - 31 |
CONSTRUCTION |
Block, Brick, Frame, Stone, Vinyl Siding |
FIREPLACE |
Yes |
GARAGE |
Yes |
HEAT |
Central, Natural Gas |
INTERIOR |
Kitchen Island, Pantry, Walk-In Closet(s) |
LOT |
0.58 acre(s) |
LOT DESCRIPTION |
Rolling Slope, Wooded |
PARKING |
Garage Door Opener |
SEWER |
Public Sewer |
STORIES |
2 |
STYLE |
Craftsman |
SUBDIVISION |
The Preserve |
VIEW |
Yes |
VIEW DESCRIPTION |
Trees/Woods |
WATER |
Public |
We respect your online privacy and will never spam you. By submitting this form with your telephone number
you are consenting for Sonny
Ferguson to contact you even if your name is on a Federal or State
"Do not call List".
Listed with Southland Realtors, Inc
The data relating to real estate for sale on this Web Site comes from the IDX Program of the East Tennessee Realtors® Multiple Listing Service. © Copyright 2025. All rights reserved.
This information is being provided for the consumers' personal, non-commercial use and may not be used for any purpose other than to identify prospective properties the consumers may be interested in purchasing. This information is updated weekly, however, some of these properties may subsequently have sold and may no longer be available. The Real Estate Broker providing this data believes it to be correct, but advises interested parties to confirm the data before relying on it in a purchase decision.
This IDX solution is (c) Diverse Solutions 2025.
Save favorite listings, searches, and get the latest alerts
Save your favorite listings, searches, and receive the latest listing alerts