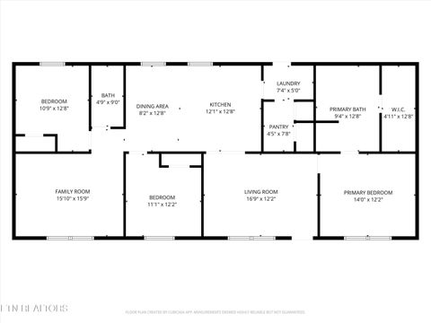
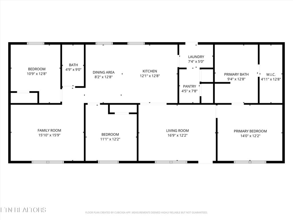
NEW CONSTRUCTION. VA, FHA APPROVED!!!!!!This state-of-the-art 3-bedroom, 2-bath home blends upscale design with cutting-edge energy efficiency, all nestled peacefully on a nearly 1-acre lot. Clayton homes like this one are quickly becoming a top trend in today's housing market"”and for good reason. Built to last and proven to maintain their value, this home is a smart investment for years to come. Inside, you'll find a bright, open-concept layout perfect for modern living. The kitchen is a chef's dream, boasting stainless steel appliances, a large center island with generous storage, and plenty of space to host family and friends for holidays and special occasions. The luxurious primary suite offers a spa-like experience, with a spacious ensuite bath featuring double sinks and a spacious tub. The two additional bedrooms are thoughtfully placed on the opposite side of the home, offering privacy and flexibility for guests and/or children. This home offers a beautiful flex room that can be used as another area to entertain or make one beautiful office/library. This home is designed with energy efficiency at its core and offers city water. Step outside to your oversized back deck and drink your morning coffee while watching the deer. Located just 5 minutes from I-75, and minutes from Athens, Sweetwater and historic small town of Niota. The home comes with a 1-year manufactured warranty offering additional peace of mind! Don't miss your chance to own a home that combines the best of technology, efficiency, and comfort"”all at an exceptional value!
LAST UPDATED
|
10/3/2025
|
YEAR BUILT
|
2025
|
COMMUNITY
|
McMinn County - 40
|
COUNTY
|
McMinn County - 40
|
STATUS
|
Active
|
PROPERTY TYPE(S)
|
Single Family
|
AIR |
Central Air |
AIR CONDITIONING |
Yes |
APPLIANCES |
Dishwasher, Microwave, Range, Refrigerator |
AREA |
McMinn County - 40 |
BASEMENT |
Crawl Space |
CONSTRUCTION |
Block, Vinyl Siding |
HEAT |
Electric, Heat Pump |
INTERIOR |
Eat-in Kitchen |
LOT |
0.78 acre(s) |
LOT DESCRIPTION |
Rolling Slope |
LOT DIMENSIONS |
150x211x170x237 |
PARKING |
Off Street |
SEWER |
Septic Tank |
TAXES |
1000 |
WATER |
Public |
We respect your online privacy and will never spam you. By submitting this form with your telephone number
you are consenting for Sonny
Ferguson to contact you even if your name is on a Federal or State
"Do not call List".
Listed with Weichert Realtors - The Space Place
The data relating to real estate for sale on this Web Site comes from the IDX Program of the East Tennessee Realtors® Multiple Listing Service. © Copyright 2025. All rights reserved.
This information is being provided for the consumers' personal, non-commercial use and may not be used for any purpose other than to identify prospective properties the consumers may be interested in purchasing. This information is updated weekly, however, some of these properties may subsequently have sold and may no longer be available. The Real Estate Broker providing this data believes it to be correct, but advises interested parties to confirm the data before relying on it in a purchase decision.
This IDX solution is (c) Diverse Solutions 2025.
Save favorite listings, searches, and get the latest alerts
Save your favorite listings, searches, and receive the latest listing alerts