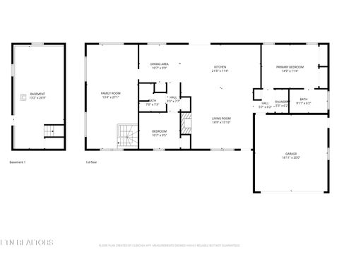
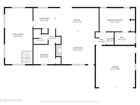
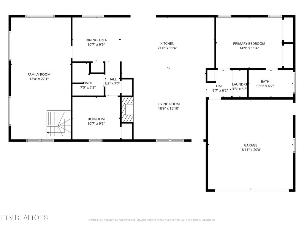
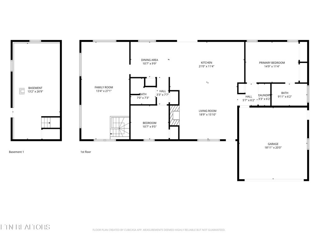
''Welcome Home'' 1977 sq ft split floorplan home situated on a triple lot of privacy is ready for you. The third bedroom had been blown out to add a second large family room overlooking the large private yard with overlarge windows inviting a mixture of light and green backdrop welcomed into the space.
Open Concept receiving you as you enter the home with a floor to ceiling stone fireplace accenting the living area, which graces the kitchen area as you prepare your meals. Luxury Vinyl tongue and groove flooring throughout the living area space; custom details like the extra set of accept windows above the front living room windows; a screened in deck/porch for your no insect sipping pleasure flowing onto a deck where you can grill your steaks.
After your wonderful grilled meal, eaten in the dining area, go sit in the family room and watch a movie or sit at your desk to catch up on correspondences. Maybe go downstairs to the ''Hobby-Cave'' and tinker on your latest project. Or go to the workshop area and hammer away building your next piece.
The Master Suite area is separate from the Guest Area complete with a tile walk in shower; tile flooring; and a space that can accommodate a king size bedroom set.
Enjoy the 'country' setting within the Fairfield Glade Resort Community enjoying all of the activities and everything Fairfield Glade has to offer. ''Come On Home'' Buyers to verify information before making an informed offer.
|
LAST UPDATED
|
1/29/2026
|
TRACT
|
Lake Glastowbury
|
|
YEAR BUILT
|
2011
|
COMMUNITY
|
Cumberland County - 34
|
|
GARAGE SPACES
|
2.0
|
COUNTY
|
Cumberland County - 34
|
|
STATUS
|
Active
|
PROPERTY TYPE(S)
|
Single Family
|
| Elementary School |
Crab Orchard |
| Jr. High School |
Crab Orchard |
| High School |
Stone Memorial |
| AIR |
Central Air |
| AIR CONDITIONING |
Yes |
| APPLIANCES |
Dishwasher, Disposal, Dryer, Humidifier, Microwave, Range, Refrigerator, Self Cleaning Oven, Washer |
| AREA |
Cumberland County - 34 |
| BASEMENT |
Bath/Stubbed, Partially Finished, Walk-Out Access, Yes |
| CONSTRUCTION |
Frame, Stone, Vinyl Siding |
| FIREPLACE |
Yes |
| GARAGE |
Yes |
| HEAT |
Central, Electric, Heat Pump |
| HOA DUES |
130|Monthly |
| INTERIOR |
Breakfast Bar, Cathedral Ceiling(s), Eat-in Kitchen, Walk-In Closet(s) |
| LOT |
1 acre(s) |
| LOT DESCRIPTION |
Private, Wooded |
| LOT DIMENSIONS |
188.35 X 135.45 IRR |
| PARKING |
Garage Door Opener, Attached |
| SEWER |
Public Sewer |
| STYLE |
Traditional |
| SUBDIVISION |
Lake Glastowbury |
| TAXES |
563.24 |
| VIEW |
Yes |
| VIEW DESCRIPTION |
Trees/Woods |
| WATER |
Public |
| WATERFRONT DESCRIPTION |
Lake Privileges, Waterfront Access |
We respect your online privacy and will never spam you. By submitting this form with your telephone number
you are consenting for Sonny
Ferguson to contact you even if your name is on a Federal or State
"Do not call List".
Listed with Crye-Leike Brown Realty
The data relating to real estate for sale on this Web Site comes from the IDX Program of the East Tennessee Realtors® Multiple Listing Service. © Copyright 2026. All rights reserved.
This information is being provided for the consumers' personal, non-commercial use and may not be used for any purpose other than to identify prospective properties the consumers may be interested in purchasing. This information is updated weekly, however, some of these properties may subsequently have sold and may no longer be available. The Real Estate Broker providing this data believes it to be correct, but advises interested parties to confirm the data before relying on it in a purchase decision.
This IDX solution is (c) Diverse Solutions 2026.
Save favorite listings, searches, and get the latest alerts
Save your favorite listings, searches, and receive the latest listing alerts