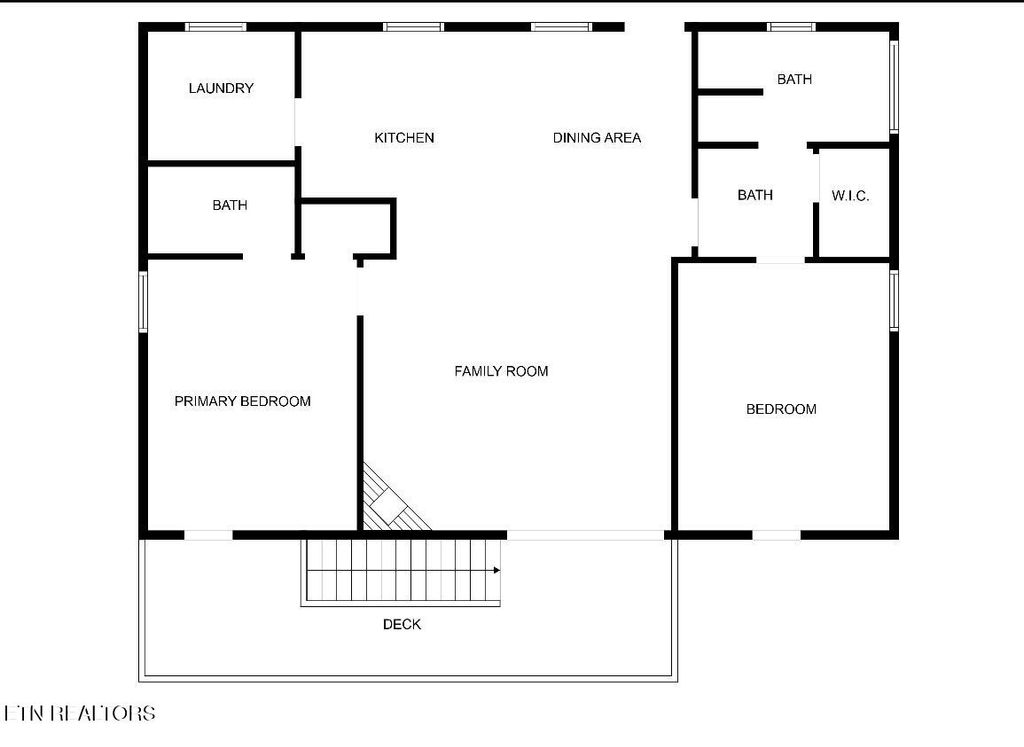
This stunning 2-bedroom, 3-bath fully renovated cabin sits on 1.04 acres bordering the Great Smoky Mountain National Park in Wears Valley. Located in a highly sought-after vacation area, it represents an exceptional opportunity. The property features two separate living spaces, each with its own driveway and entrance, ideal for individual rentals or an in-law suite below the main level. As a true mountain retreat, the cabin boasts new wood flooring and tiled bathrooms. The upper main level impresses with a cathedral ceiling supported by rustic beams and a striking wood-burning stone fireplace. The kitchen, outfitted with wooden cabinets, new granite countertops, a stone backsplash, and stainless steel appliances, is both elegant and highly functional. The primary suite offers a whirlpool tub for ultimate relaxation. Step outside onto the covered deck to enjoy tranquil surroundings. The expansive wraparound porch provides ample space to take in the natural beauty. The downstairs area includes an open-concept kitchen and living room with generous dining space, a bonus room with new wood floors, and a private bathroom. The cabin is equipped with a new hot water heater and water filtration system. Located minutes from local attractions, dining, entertainment, and the entrance to the National Park"”this property truly doesn't get better than this. Must see!
|
LAST UPDATED
|
12/20/2025
|
TRACT
|
Laurel Ridge
|
|
YEAR BUILT
|
1993
|
COMMUNITY
|
Sevier County - 27
|
|
COUNTY
|
Sevier County - 27
|
STATUS
|
Active
|
|
PROPERTY TYPE(S)
|
Single Family
|
|
|
|
Prior to Dec 20, '25
|
$575,000
|
| Dec 20, '25 - Today |
$549,900 |
| AIR |
Ceiling Fan(s), Central Air |
| AIR CONDITIONING |
Yes |
| APPLIANCES |
Dishwasher, Dryer, Microwave, Range, Refrigerator, Washer |
| AREA |
Sevier County - 27 |
| BASEMENT |
Finished, Walk-Out Access, Yes |
| CONSTRUCTION |
Frame, Other |
| FIREPLACE |
Yes |
| HEAT |
Central, Electric |
| INTERIOR |
Eat-in Kitchen |
| LOT |
1.04 acre(s) |
| LOT DESCRIPTION |
Private, Wooded |
| PARKING |
Other |
| SEWER |
Septic Tank |
| STYLE |
Cabin, Traditional |
| SUBDIVISION |
Laurel Ridge |
| TAXES |
909.09 |
| VIEW |
Yes |
| VIEW DESCRIPTION |
Mountain(s), Trees/Woods |
| WATER |
Well |
We respect your online privacy and will never spam you. By submitting this form with your telephone number
you are consenting for Sonny
Ferguson to contact you even if your name is on a Federal or State
"Do not call List".
Listed with Mountain Realty Group
The data relating to real estate for sale on this Web Site comes from the IDX Program of the East Tennessee Realtors® Multiple Listing Service. © Copyright 2026. All rights reserved.
This information is being provided for the consumers' personal, non-commercial use and may not be used for any purpose other than to identify prospective properties the consumers may be interested in purchasing. This information is updated weekly, however, some of these properties may subsequently have sold and may no longer be available. The Real Estate Broker providing this data believes it to be correct, but advises interested parties to confirm the data before relying on it in a purchase decision.
This IDX solution is (c) Diverse Solutions 2026.
Save favorite listings, searches, and get the latest alerts
Save your favorite listings, searches, and receive the latest listing alerts