A Rare opportunity to purchase a home on almost 18 acres! The home is a 3 Bedroom, 2 Bathroom with an attached 2 Car Garage. If you're looking for a private homestead, mini farm, or your next development project, this property checks all of the boxes. The land offers a great mix of open space and usability, perfect for horses, cattle, goats chicken or simply enjoying your own slice of the countryside. Multiple storage options are already in place throughout the property giving you plenty of room for equipment tools, or hobbies. Conveniently located less than an hour from Knoxville, and Sevierville making this a central location for most places you want to go.
For investors, and builders, sewer access at the road opens the door to potential neighborhood development or expansion opportunities. Option to purchase with 170 Walker Ford Rd, also.
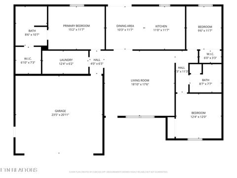
Drone footage used, buyer to do their due diligence, information taken from tax records and seller.
|
LAST UPDATED
|
4/5/2026
|
YEAR BUILT
|
2007
|
|
COMMUNITY
|
Union County - 25
|
GARAGE SPACES
|
2.0
|
|
COUNTY
|
Union County - 25
|
STATUS
|
Active
|
|
PROPERTY TYPE(S)
|
Single Family
|
|
|
| AIR |
Central Air |
| AIR CONDITIONING |
Yes |
| APPLIANCES |
Range, Refrigerator |
| AREA |
Union County - 25 |
| BASEMENT |
Crawl Space |
| CONSTRUCTION |
Frame, Vinyl Siding |
| GARAGE |
Yes |
| HEAT |
Electric, None |
| LOT |
17.77 acre(s) |
| LOT DESCRIPTION |
Irregular Lot, Level, Rolling Slope |
| SEWER |
Public Sewer |
| STYLE |
Traditional |
| TAXES |
969.9 |
| WATER |
Public |
We respect your online privacy and will never spam you. By submitting this form with your telephone number
you are consenting for Sonny
Ferguson to contact you even if your name is on a Federal or State
"Do not call List".
Listed with Southern Charm Homes
The data relating to real estate for sale on this Web Site comes from the IDX Program of the East Tennessee Realtors® Multiple Listing Service. © Copyright 2026. All rights reserved.
This information is being provided for the consumers' personal, non-commercial use and may not be used for any purpose other than to identify prospective properties the consumers may be interested in purchasing. This information is updated weekly, however, some of these properties may subsequently have sold and may no longer be available. The Real Estate Broker providing this data believes it to be correct, but advises interested parties to confirm the data before relying on it in a purchase decision.
This IDX solution is (c) Diverse Solutions 2026.
Save favorite listings, searches, and get the latest alerts
Save your favorite listings, searches, and receive the latest listing alerts