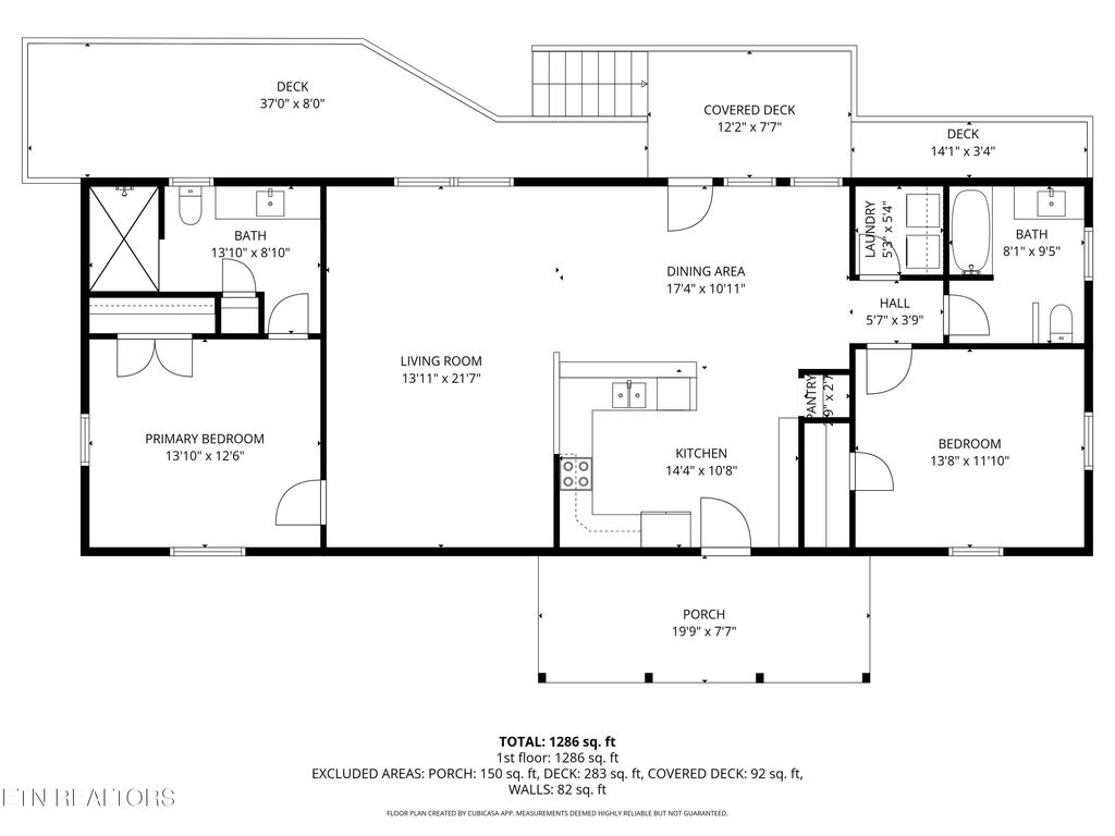
Move-in ready and priced to get attention--this 2-bedroom, 2 full bath home delivers the layout buyers are asking for. The open floor plan creates a natural gathering space, with a bar/counter connecting the kitchen and living area--ideal for entertaining or everyday life.
A smart split-bedroom design places each bedroom and bath on opposite ends, offering privacy and flexibility. The separate laundry room keeps things practical and out of sight.
Location seals the deal--just north of Chattanooga and Cleveland, you'll enjoy peaceful country surroundings while staying close to everything. Plus, you're minutes from the Cherokee National Forest, Hiwassee River, and Ocoee River for hiking, fishing, rafting, and more.
If you've been waiting for a clean, functional home in a great location--this is one you don't want to miss.
|
LAST UPDATED
|
3/31/2026
|
YEAR BUILT
|
1994
|
|
COMMUNITY
|
McMinn County - 40
|
GARAGE SPACES
|
2.0
|
|
COUNTY
|
McMinn County - 40
|
STATUS
|
Active
|
|
PROPERTY TYPE(S)
|
Single Family
|
|
|
| AIR |
Central Air |
| AIR CONDITIONING |
Yes |
| APPLIANCES |
Dishwasher, Range, Refrigerator |
| AREA |
McMinn County - 40 |
| BASEMENT |
Crawl Space |
| CONSTRUCTION |
Frame, Vinyl Siding |
| GARAGE |
Yes |
| HEAT |
Central, Electric |
| INTERIOR |
Breakfast Bar |
| LOT |
0.6 acre(s) |
| LOT DESCRIPTION |
Irregular Lot |
| LOT DIMENSIONS |
26x132x151x265x353 |
| SEWER |
Septic Tank |
| STYLE |
Traditional |
| TAXES |
520.32 |
| WATER |
Public |
We respect your online privacy and will never spam you. By submitting this form with your telephone number
you are consenting for Sonny
Ferguson to contact you even if your name is on a Federal or State
"Do not call List".
Listed with KW Cleveland
The data relating to real estate for sale on this Web Site comes from the IDX Program of the East Tennessee Realtors® Multiple Listing Service. © Copyright 2026. All rights reserved.
This information is being provided for the consumers' personal, non-commercial use and may not be used for any purpose other than to identify prospective properties the consumers may be interested in purchasing. This information is updated weekly, however, some of these properties may subsequently have sold and may no longer be available. The Real Estate Broker providing this data believes it to be correct, but advises interested parties to confirm the data before relying on it in a purchase decision.
This IDX solution is (c) Diverse Solutions 2026.
Save favorite listings, searches, and get the latest alerts
Save your favorite listings, searches, and receive the latest listing alerts