Proven Income-Producing Smoky Mountain Cabin | $60,000+ Gross Rental Income in 2025
Welcome to your turnkey investment opportunity in the highly sought-after Black Bear Ridge Resort! This fully furnished 2-bedroom, 2-bath log cabin combines mountain charm with strong rental performance, generating over $60,000 in gross rental income in 2025.
Perfectly located just minutes from Dollywood, Pigeon Forge, and area shopping, this cabin offers the ideal blend of privacy and convenience--key factors for maximizing short-term rental success.
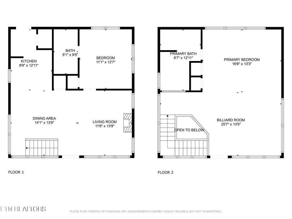
Step inside to a warm and inviting great room featuring soaring ceilings, exposed wood beams, and a stunning stacked stone fireplace--creating the perfect mountain retreat experience guests are searching for. The fully equipped kitchen with stainless steel appliances makes hosting easy and seamless.
The main-level bedroom includes a full bath and private access to one of two expansive balconies with breathtaking Smoky Mountain views. Upstairs, guests will love the entertainment space complete with a pool table, air hockey, and cozy sitting area, along with a second bedroom featuring a jacuzzi tub and walk-in shower for a spa-like experience.
A charming loft area provides additional sleeping or lounging space--perfect for maximizing occupancy and rental income.
After a day of exploring, unwind in the brand new hot tub (2025) while taking in the serene mountain setting. Whether you're looking to expand your investment portfolio or own a personal mountain getaway that pays for itself, this cabin checks every box.
|
LAST UPDATED
|
3/31/2026
|
TRACT
|
Black Bear Ridge Pud
|
|
YEAR BUILT
|
2003
|
COMMUNITY
|
Sevier County - 27
|
|
COUNTY
|
Sevier County - 27
|
STATUS
|
Active
|
|
PROPERTY TYPE(S)
|
Single Family
|
|
|
| AIR |
Ceiling Fan(s), Central Air |
| AIR CONDITIONING |
Yes |
| APPLIANCES |
Dishwasher, Dryer, Microwave, Range, Refrigerator, Self Cleaning Oven, Washer |
| AREA |
Sevier County - 27 |
| BASEMENT |
Crawl Space |
| CONSTRUCTION |
Frame, Log |
| EXTERIOR |
Balcony |
| FIREPLACE |
Yes |
| HEAT |
Central, Electric, Natural Gas |
| HOA DUES |
350|Quarterly |
| LOT |
436 sq ft |
| LOT DESCRIPTION |
Rolling Slope, Wooded |
| PARKING |
Assigned |
| SEWER |
Public Sewer, Other |
| STORIES |
2 |
| STYLE |
Cabin, Log |
| SUBDIVISION |
Black Bear Ridge Pud |
| TAXES |
1681.28 |
| WATER |
Public |
We respect your online privacy and will never spam you. By submitting this form with your telephone number
you are consenting for Sonny
Ferguson to contact you even if your name is on a Federal or State
"Do not call List".
Listed with LPT Realty, LLC
The data relating to real estate for sale on this Web Site comes from the IDX Program of the East Tennessee Realtors® Multiple Listing Service. © Copyright 2026. All rights reserved.
This information is being provided for the consumers' personal, non-commercial use and may not be used for any purpose other than to identify prospective properties the consumers may be interested in purchasing. This information is updated weekly, however, some of these properties may subsequently have sold and may no longer be available. The Real Estate Broker providing this data believes it to be correct, but advises interested parties to confirm the data before relying on it in a purchase decision.
This IDX solution is (c) Diverse Solutions 2026.
Save favorite listings, searches, and get the latest alerts
Save your favorite listings, searches, and receive the latest listing alerts