4 Acre Mini Farm - Fenced, Garden, Loft & Room to Grow
Mini Farm / Homestead Opportunity in Crossville, TN (Cumberland County)! This 4-acre corner lot offers usable land, privacy, and flexibility for gardening, livestock, chickens, or hobby farming--ideal for those seeking a Tennessee homestead lifestyle with convenient access to town amenities, shopping, and dining.
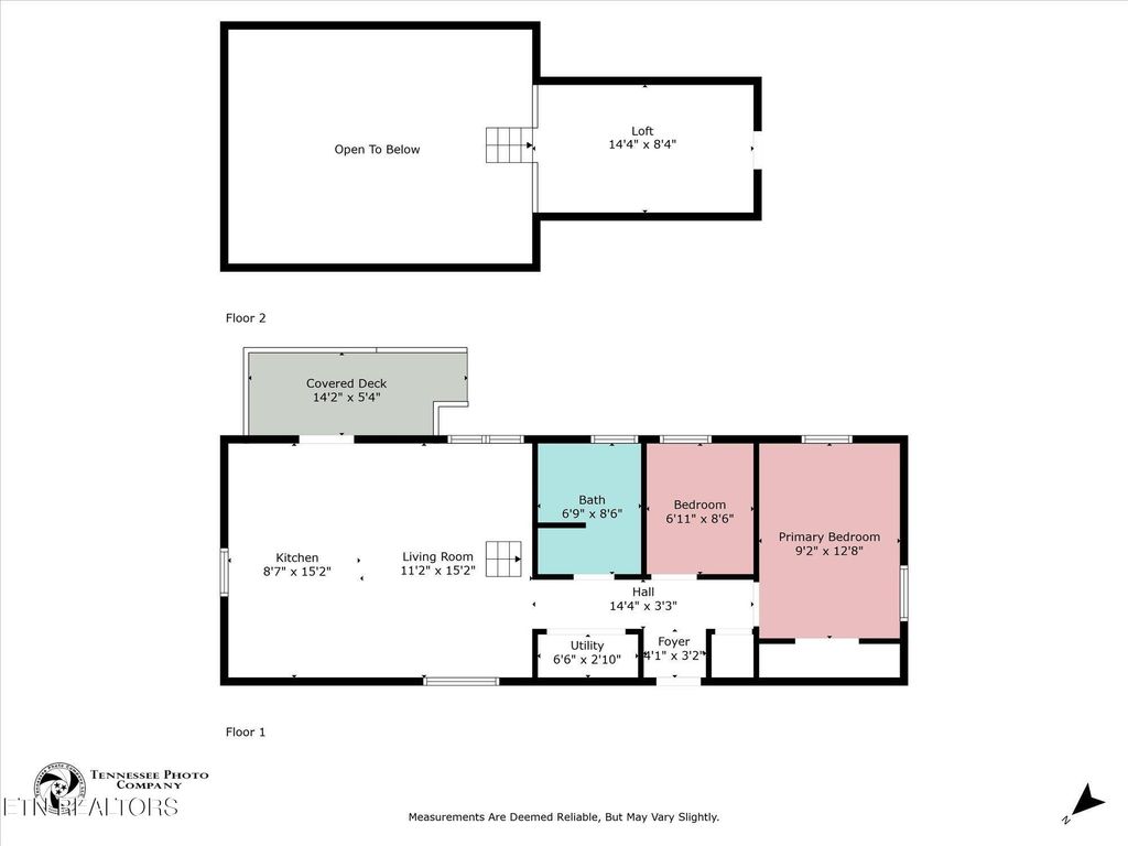
The home features 1BR/1BA, a bonus room, and a 14x8 loft (not included in square footage), providing flexible space for guests, office, storage, or homesteading use. Vaulted ceilings create an open, airy feel.
Property highlights include a fenced front yard and mostly fenced perimeter for animals, an established garden area ready for seasonal planting, and a large storage shed for tools, equipment, or feed--making this property move-in ready for small farm or homestead use.
All kitchen appliances, washer, and dryer convey. High-speed internet installed--perfect for remote work or running an online business from your homestead.
Additional value: Floor plan available for future expansion. Minimal restrictions (no mobile, manufactured, or prefab homes).
If you're searching for land in Crossville TN, Cumberland County acreage, or a mini farm with room to grow, this property delivers both immediate usability and long-term potential.
Schedule your showing today.
All information deemed reliable but not guaranteed; buyers to verify.
|
LAST UPDATED
|
3/30/2026
|
YEAR BUILT
|
2018
|
|
COMMUNITY
|
Cumberland County - 34
|
COUNTY
|
Cumberland County - 34
|
|
STATUS
|
Active
|
PROPERTY TYPE(S)
|
Single Family
|
| Elementary School |
Pleasant Hill |
| Jr. High School |
Pleasant Hill |
| High School |
Cumberland County |
| AIR |
Central Air |
| AIR CONDITIONING |
Yes |
| APPLIANCES |
Dishwasher, Dryer, Microwave, Range, Refrigerator, Washer |
| AREA |
Cumberland County - 34 |
| CONSTRUCTION |
Frame, Vinyl Siding |
| HEAT |
Central, Electric |
| INTERIOR |
Cathedral Ceiling(s), Eat-in Kitchen, Kitchen Island |
| LOT |
4 acre(s) |
| LOT DESCRIPTION |
Corner Lot, Private, Rolling Slope |
| LOT DIMENSIONS |
524 x 294 |
| PARKING |
Off Street |
| SEWER |
Septic Tank |
| STYLE |
Traditional |
| TAXES |
299.36 |
| WATER |
Public |
We respect your online privacy and will never spam you. By submitting this form with your telephone number
you are consenting for Sonny
Ferguson to contact you even if your name is on a Federal or State
"Do not call List".
Listed with Baisley Hometown Realty, LLC
The data relating to real estate for sale on this Web Site comes from the IDX Program of the East Tennessee Realtors® Multiple Listing Service. © Copyright 2026. All rights reserved.
This information is being provided for the consumers' personal, non-commercial use and may not be used for any purpose other than to identify prospective properties the consumers may be interested in purchasing. This information is updated weekly, however, some of these properties may subsequently have sold and may no longer be available. The Real Estate Broker providing this data believes it to be correct, but advises interested parties to confirm the data before relying on it in a purchase decision.
This IDX solution is (c) Diverse Solutions 2026.
Save favorite listings, searches, and get the latest alerts
Save your favorite listings, searches, and receive the latest listing alerts