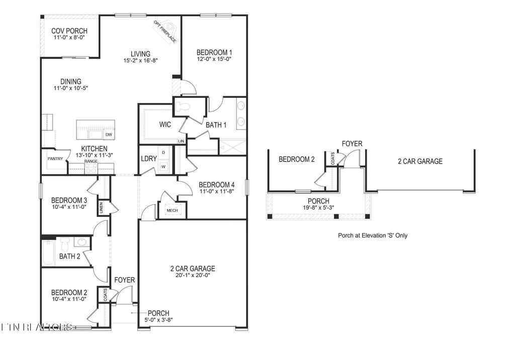
Come home to 4347 Juliette Elise Street at Price's Point in South Knoxville, TN. The exterior of the home will feature a taupe color palette with tonal brick. This single-story home offers 1,774 square feet with 4 bedrooms and 2 bathrooms, combining comfort with an open, functional layout.
At the heart of the home, the open-concept kitchen overlooks the dining and living areas, creating an ideal space for entertaining or relaxing. A large kitchen island provides additional seating and prep space, while a roomy pantry adds convenient storage. You'll also find shaker-style cabinetry, granite countertops, and stainless-steel appliances providing a polished, modern finish. Sliding doors open to a covered patio, extending your living space outdoors.
The private primary suite is tucked away at the back of the home and features a spacious walk-in closet and bathroom. There are three additional bedrooms, two near the front of the home and one across the hall offers flexibility for guests or a home office, along with a second full bathroom.
This home also has 9ft ceilings on first floor, gas fireplace, Moen® nickel plumbing fixtures with anti-scald shower valves, Mohawk® Revwood LVP and carpet flooring, LED lighting throughout, upgraded lifetime architectural shingles, concrete rear patio, & our Home Is Connected Smart Home Package.
Seller offering closing cost assistance to qualified buyers. Builder warranty included. See agent for details.
Due to variations amongst computer monitors, actual colors may vary. Pictures, photographs, colors, features, and sizes are for illustration purposes only and will vary from the homes as built. Photos may include digital staging. Square footage and dimensions are approximate. Buyer should conduct his or her own investigation of the present and future availability of school districts and school assignments. *Taxes are estimated. Buyer to verify all information.
|
LAST UPDATED
|
3/26/2026
|
TRACT
|
Price's Point
|
|
YEAR BUILT
|
2026
|
COMMUNITY
|
Knox County - 1
|
|
GARAGE SPACES
|
2.0
|
COUNTY
|
Knox County - 1
|
|
STATUS
|
Active
|
PROPERTY TYPE(S)
|
Single Family
|
| Elementary School |
New Hopewell |
| Jr. High School |
South Doyle |
| High School |
South Doyle |
| AIR |
Central Air, Zoned |
| AIR CONDITIONING |
Yes |
| AMENITIES |
Insurance |
| APPLIANCES |
Dishwasher, Disposal, Gas Range, Microwave, Other, Tankless Water Heater |
| AREA |
Knox County - 1 |
| CONSTRUCTION |
Brick, Frame, Other, Vinyl Siding |
| FIREPLACE |
Yes |
| GARAGE |
Yes |
| HEAT |
Ceiling, Central, Electric, Heat Pump, Natural Gas, Zoned |
| HOA DUES |
600|Annually |
| INTERIOR |
Kitchen Island, Pantry, Walk-In Closet(s) |
| LOT |
6098 sq ft |
| LOT DESCRIPTION |
Level |
| PARKING |
Garage Door Opener, Attached |
| SEWER |
Public Sewer |
| STYLE |
Traditional |
| SUBDIVISION |
Price's Point |
| TAXES |
1379.6 |
| VIEW |
Yes |
| VIEW DESCRIPTION |
Mountain(s), Lake |
| WATER |
Public |
We respect your online privacy and will never spam you. By submitting this form with your telephone number
you are consenting for Sonny
Ferguson to contact you even if your name is on a Federal or State
"Do not call List".
Listed with D.R. Horton
The data relating to real estate for sale on this Web Site comes from the IDX Program of the East Tennessee Realtors® Multiple Listing Service. © Copyright 2026. All rights reserved.
This information is being provided for the consumers' personal, non-commercial use and may not be used for any purpose other than to identify prospective properties the consumers may be interested in purchasing. This information is updated weekly, however, some of these properties may subsequently have sold and may no longer be available. The Real Estate Broker providing this data believes it to be correct, but advises interested parties to confirm the data before relying on it in a purchase decision.
This IDX solution is (c) Diverse Solutions 2026.
Save favorite listings, searches, and get the latest alerts
Save your favorite listings, searches, and receive the latest listing alerts