518 Gohi Trail: Welcome to Kahite - a Tellico Village community located along the Tellico Reservoir.
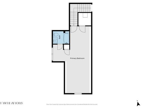
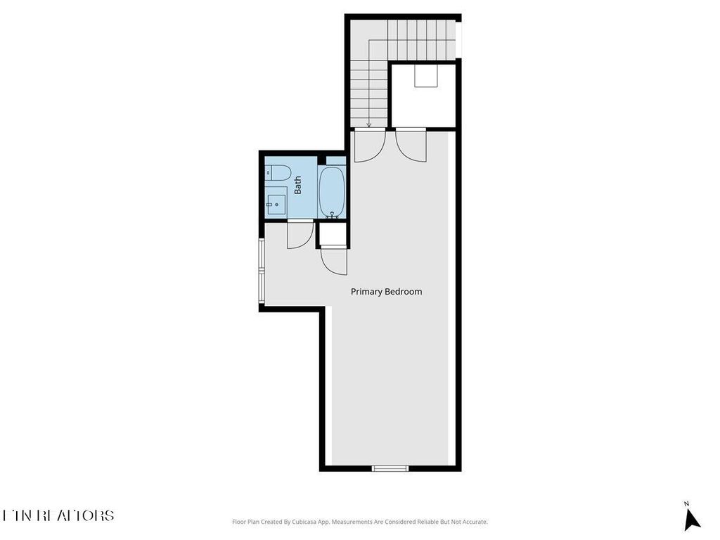
NEW CONSTRUCTION Located in a cul-de-sac on a wooded lot, this floorplan includes an extra large 3 car garage, 5 bedrooms - 4 on the main with a split bedroom layout plus the Bonus/Bedroom over garage. Located on the main, the primary suite is a sanctuary, boasting a spa-inspired zero entry walk-in shower and luxurious finishes. The master includes an oversized custom walk-in closet. With this flexible floorplan, use 1 of the remaining 3 main level bedrooms as an office and/or den. The light-filled main floor centers around spacious gathering areas. This layout is ideal for everyday living and effortless entertaining.
The KITCHEN: The chef's kitchen is a showpiece with a 36 inch stove/oven, drawer microwave, dishwasher, and fridge/freezer. A walk-in pantry is ready to store all your items for the gatherings this home is designed to handle.
The LOCATION: This NEW Construction is located deep within the neighborhood on a cul-de-sac where one of the many community hiking trails is located.
Whether you're relaxing in your serene backyard or enjoying the community amenities (marina perfect for a day on the lake, golf, hiking, pickleball,etc), every detail of this home has been carefully curated for refined, modern living with timeless design.
4 bedrooms on main
3 car side-entry garage
Bonus Room/5th bedroom with ensuite over garage
Master Suite features zero threshold shower
Lake front community with marina
18 hole golf course + driving range
Clubhouse with restaurant and mountain views
Hiking/walking trails throughout neighborhood
Pickleball Courts
The NEIGHBORHOOD: A Tellico Village community, Kahite is possibly on the best area of the lake where mountain tributaries converge: both the Little Tennessee River flowing along the famed ''Dragon''/129 and Tellico River. Kahite boasts gorgeous views of the mountains and area lakes. You might want to budget for your own golf cart as many residents traverse throughout the neighborhood streets to visit, head to the next pickleball tournament, hit a round of golf, or visit at the grill in their personal carts. The community is designed around the 18-hole Kahite Golf Course (open to the public). The neighborhood Clubhouse has both indoor and outdoor seating with mountain views while you enjoy the delicious options from the grill. The Clubhouse includes a workout area and pool area with sun deck for residents who opt-in to the recreation membership.
The AREA: Across the lake is the Sequoia Birthplace Museum - home of the Cherokee Nations written language. Several state parks are a short drive from Kahite. One park is Fort Loudon State Park, known for hiking, kayaking, a museum, picnic area, fishing pier, and fort. Kahite is surrounded by mountain streams and rivers with community hiking trails strategically designed to weave around and throughout the neighborhood. Come to Tennessee and see what this area of the Tennessee Valley has to offer.
|
LAST UPDATED
|
2/20/2026
|
TRACT
|
Kahite
|
|
YEAR BUILT
|
2026
|
COMMUNITY
|
Monroe County - 33
|
|
GARAGE SPACES
|
3.0
|
COUNTY
|
Monroe County - 33
|
|
STATUS
|
Active
|
PROPERTY TYPE(S)
|
Single Family
|
| Elementary School |
Vonore |
| Jr. High School |
Vonore |
| High School |
Sequoyah |
| AIR |
Central Air |
| AIR CONDITIONING |
Yes |
| APPLIANCES |
Dishwasher, Disposal, Microwave, Range, Refrigerator, Self Cleaning Oven |
| AREA |
Monroe County - 33 |
| BASEMENT |
None |
| CONSTRUCTION |
Block, Frame, Vinyl Siding |
| FIREPLACE |
Yes |
| GARAGE |
Yes |
| HEAT |
Central, Electric, Fireplace Insert, Heat Pump |
| INTERIOR |
Breakfast Bar, Dry Bar, Eat-in Kitchen, Kitchen Island, Pantry, Walk-In Closet(s) |
| LOT |
0.45 acre(s) |
| LOT DESCRIPTION |
Cul-De-Sac, Irregular Lot, Landscaped, Level, Private, Rolling Slope, Wooded |
| LOT DIMENSIONS |
34x127x163x117x147 |
| PARKING |
Off Street, Garage Faces Side, Garage Door Opener, Attached, Assigned |
| SEWER |
Public Sewer, Other |
| STYLE |
Traditional |
| SUBDIVISION |
Kahite |
| TAXES |
184.26 |
| VIEW |
Yes |
| VIEW DESCRIPTION |
Trees/Woods, Other |
| WATER |
Public, Other |
We respect your online privacy and will never spam you. By submitting this form with your telephone number
you are consenting for Sonny
Ferguson to contact you even if your name is on a Federal or State
"Do not call List".
Listed with Realty Executives Associates
The data relating to real estate for sale on this Web Site comes from the IDX Program of the East Tennessee Realtors® Multiple Listing Service. © Copyright 2026. All rights reserved.
This information is being provided for the consumers' personal, non-commercial use and may not be used for any purpose other than to identify prospective properties the consumers may be interested in purchasing. This information is updated weekly, however, some of these properties may subsequently have sold and may no longer be available. The Real Estate Broker providing this data believes it to be correct, but advises interested parties to confirm the data before relying on it in a purchase decision.
This IDX solution is (c) Diverse Solutions 2026.
Save favorite listings, searches, and get the latest alerts
Save your favorite listings, searches, and receive the latest listing alerts