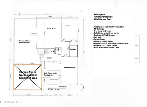
COMPLETION MID-DECEMBER! Act now for the opportunity for design collaboration on Winterpark floorplan with master and guest rooms on main, with a finished 1800 sqft basement!! The finished basement will feature soaring 10' ceilings, dedicated Hvac system, LVP flooring, bedroom #5, full bath, SAFE ROOM, family room, rec room, huge mechanical/storage room, media room or large office/hobby room, and walk-out patio! The Heritage, nestled in the heart of Bluegrass, is very convenient to fantastic schools, shopping and dining, lakes and parks, Pellissippi Parkway, McGhee Tyson airport, Downtown and Oak Ridge! Follow us on Facebook and Instagram for updates!
Builder is Owner/Agent.
|
LAST UPDATED
|
2/18/2026
|
TRACT
|
The Heritage at Bluegrass
|
|
YEAR BUILT
|
2026
|
COMMUNITY
|
Knox County - 1
|
|
GARAGE SPACES
|
2.0
|
COUNTY
|
Knox County - 1
|
|
STATUS
|
Pending
|
PROPERTY TYPE(S)
|
Single Family
|
| Elementary School |
A L Lotts |
| Jr. High School |
West Valley |
| High School |
Bearden |
| AIR |
Ceiling Fan(s), Central Air |
| AIR CONDITIONING |
Yes |
| APPLIANCES |
Dishwasher, Disposal, Microwave, Range, Tankless Water Heater |
| AREA |
Knox County - 1 |
| BASEMENT |
Finished, Walk-Out Access, Yes |
| CONSTRUCTION |
Brick, Fiber Cement, Frame, Stone |
| FIREPLACE |
Yes |
| GARAGE |
Yes |
| HEAT |
Central, Electric, Natural Gas |
| HOA DUES |
250|Annually |
| INTERIOR |
Cathedral Ceiling(s), Eat-in Kitchen, Kitchen Island, Pantry, Walk-In Closet(s) |
| LOT |
7405 sq ft |
| LOT DESCRIPTION |
Level, Rolling Slope |
| LOT DIMENSIONS |
60x128x60x117 |
| PARKING |
Garage Door Opener, Attached |
| SEWER |
Public Sewer |
| STORIES |
2 |
| STYLE |
Craftsman |
| SUBDIVISION |
The Heritage at Bluegrass |
| TAXES |
3200 |
| WATER |
Public |
We respect your online privacy and will never spam you. By submitting this form with your telephone number
you are consenting for Sonny
Ferguson to contact you even if your name is on a Federal or State
"Do not call List".
Listed with Oak & Iron Realty
The data relating to real estate for sale on this Web Site comes from the IDX Program of the East Tennessee Realtors® Multiple Listing Service. © Copyright 2026. All rights reserved.
This information is being provided for the consumers' personal, non-commercial use and may not be used for any purpose other than to identify prospective properties the consumers may be interested in purchasing. This information is updated weekly, however, some of these properties may subsequently have sold and may no longer be available. The Real Estate Broker providing this data believes it to be correct, but advises interested parties to confirm the data before relying on it in a purchase decision.
This IDX solution is (c) Diverse Solutions 2026.
Save favorite listings, searches, and get the latest alerts
Save your favorite listings, searches, and receive the latest listing alerts