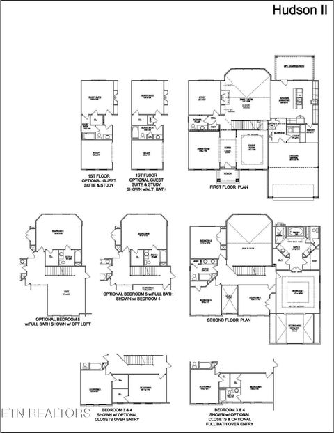
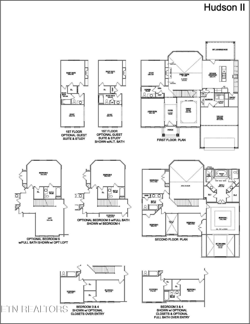
The Hudson II is an elegant two story home that combines traditional, formal styling with great livability with five bedrooms and four full baths. A two story foyer with balcony overlook creates a dramatic entry. Nine-foot ceilings are standard throughout the first floor, which has formal living and dining plus a family room with an impressive two-story bay window with an optional fireplace flanked by built-in bookshelves. First floor guest bedroom with access to a full bath with a fully tiled shower. The kitchen includes an island with counter seating, huge walk-in pantry, and separate breakfast area. The oversized mudroom has a built in drop zone and the utility room includes a separate coat closet and built-in folding area.
Upstairs there are four bedrooms. The upstairs primary bedroom suite has a spacious separate sitting area, and double doors open to the bath, which includes dual walk-in closets, separate vanities, garden tub and oversized fully tiled shower. Bedrooms 2 and 3 share a hall bathroom. The fourth bedroom has a private full ensuite bath. Home also has a 16'x10' covered rear patio, tankless water heater, stainless steel appliances with a chimney hood, microwave drawer, gas range, and a refrigerator. EV capable charging outlet in the garage, LVP flooring on main level and bathrooms. This home is loaded!
|
LAST UPDATED
|
12/17/2025
|
TRACT
|
Bluegrass Ridge
|
|
YEAR BUILT
|
2026
|
COMMUNITY
|
Knox County - 1
|
|
GARAGE SPACES
|
2.0
|
COUNTY
|
Knox County - 1
|
|
STATUS
|
Pending
|
PROPERTY TYPE(S)
|
Single Family
|
| AIR |
Central Air |
| AIR CONDITIONING |
Yes |
| APPLIANCES |
Dishwasher, Disposal, Microwave, Refrigerator, Self Cleaning Oven, Tankless Water Heater |
| AREA |
Knox County - 1 |
| BASEMENT |
None |
| CONSTRUCTION |
Block, Brick, Frame, Other, Vinyl Siding |
| FIREPLACE |
Yes |
| GARAGE |
Yes |
| HEAT |
Central, Electric, Natural Gas |
| HOA DUES |
600|Annually |
| INTERIOR |
Kitchen Island, Pantry, Walk-In Closet(s) |
| LOT |
0.46 acre(s) |
| LOT DESCRIPTION |
Level, Rolling Slope |
| PARKING |
Garage Door Opener, Attached |
| SEWER |
Public Sewer |
| STORIES |
2 |
| STYLE |
Traditional |
| SUBDIVISION |
Bluegrass Ridge |
| TAXES |
2883.19 |
| WATER |
Public |
We respect your online privacy and will never spam you. By submitting this form with your telephone number
you are consenting for Sonny
Ferguson to contact you even if your name is on a Federal or State
"Do not call List".
Listed with Realty Executives Associates
The data relating to real estate for sale on this Web Site comes from the IDX Program of the East Tennessee Realtors® Multiple Listing Service. © Copyright 2026. All rights reserved.
This information is being provided for the consumers' personal, non-commercial use and may not be used for any purpose other than to identify prospective properties the consumers may be interested in purchasing. This information is updated weekly, however, some of these properties may subsequently have sold and may no longer be available. The Real Estate Broker providing this data believes it to be correct, but advises interested parties to confirm the data before relying on it in a purchase decision.
This IDX solution is (c) Diverse Solutions 2026.
Save favorite listings, searches, and get the latest alerts
Save your favorite listings, searches, and receive the latest listing alerts